Pacific Land Brokers

6971 Bristol Drive, “Claremont Hills”, Berkeley - $290,000

Tremendous development opportunity

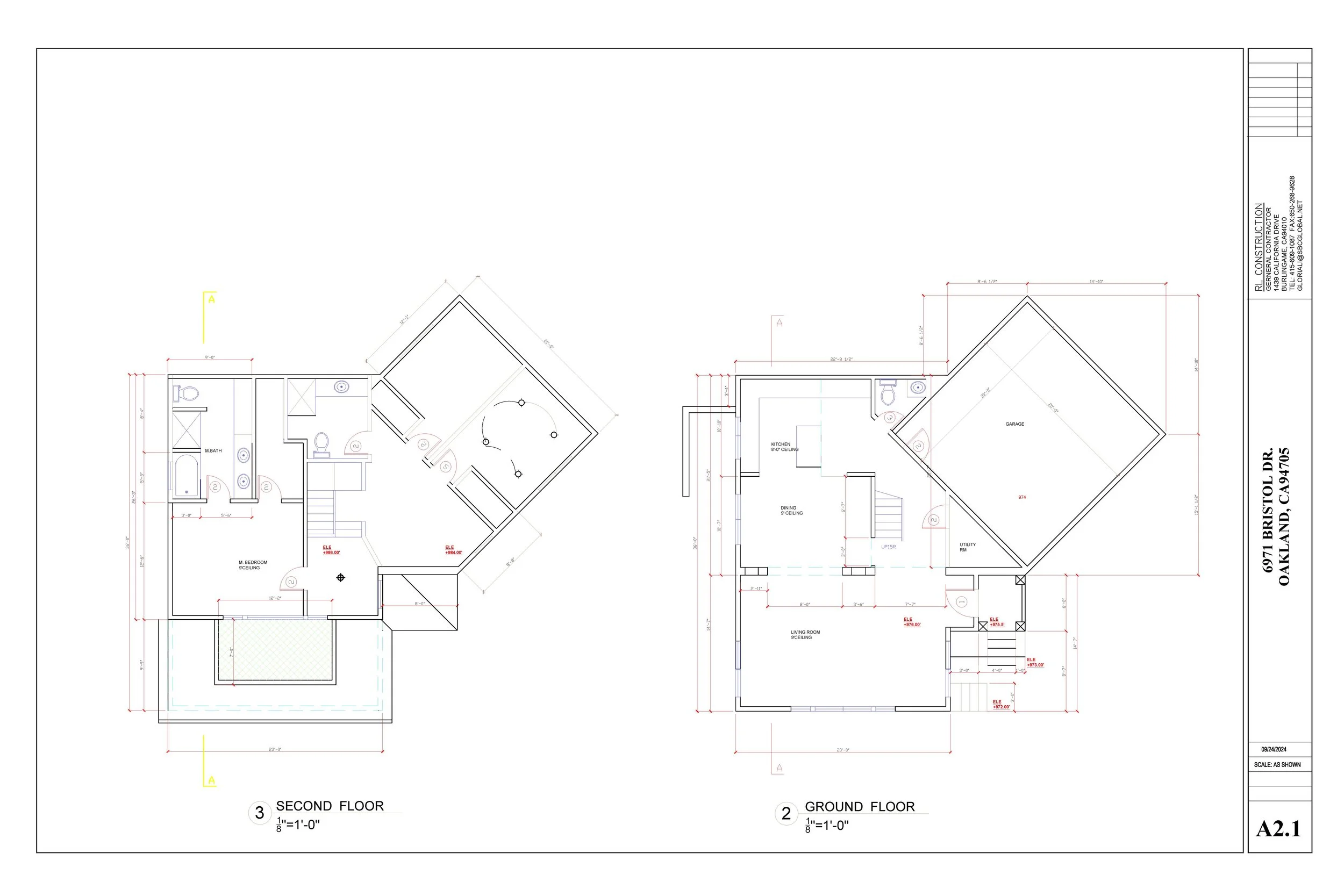
6,656 sq ft hillside lot with building pad and available 2,500± sq ft preliminary home plans—minutes to Hwy 24, the Claremont Tunnel, UC Berkeley, and East Bay Regional Parks.

Elevate your vision at 6971 Bristol Drive in the prestigious Claremont Hills of Berkeley. This 6,656 sq ft irregular hillside parcel offers a rare opportunity to design and build a custom residence surrounded by established luxury estates. The property includes an existing building pad with utilities nearby, and the owner has tentative architectural drawings for an approximately 2,500 sq ft two-story home.

Beyond its serene setting and potential views, this location stands out for exceptional accessibility. Just minutes from Highway 24 and the Claremont Tunnel, the property provides direct commuter access to Oakland, Walnut Creek, and beyond. Convenient connections to I-80 and I-580 enhance regional mobility, while nearby Orinda and central Berkeley offer dining, shopping, and everyday amenities. The property is also close to University of California, Berkeley, a major cultural and academic anchor supporting long-term value. Outdoor enthusiasts will appreciate proximity to the East Bay Regional Park District, with miles of trails, open space, and panoramic Bay Area vistas nearby.

This is a premier opportunity to build a high-end custom residence in a location that combines hillside privacy with seamless access to urban, academic, and outdoor amenities—where luxury truly begins with location.